Atelier Steeve Ray
Atelier Steeve Ray — Architecture et environnement
  • Projets
  • Atelier
  • Nouvelles
  • Contact
2304

Vandoeuvres

Réalisation

  • Type Rénovation
  • Année 2026
  • Client Privé
  • Localisation Vandoeuvres, Genève, Suisse

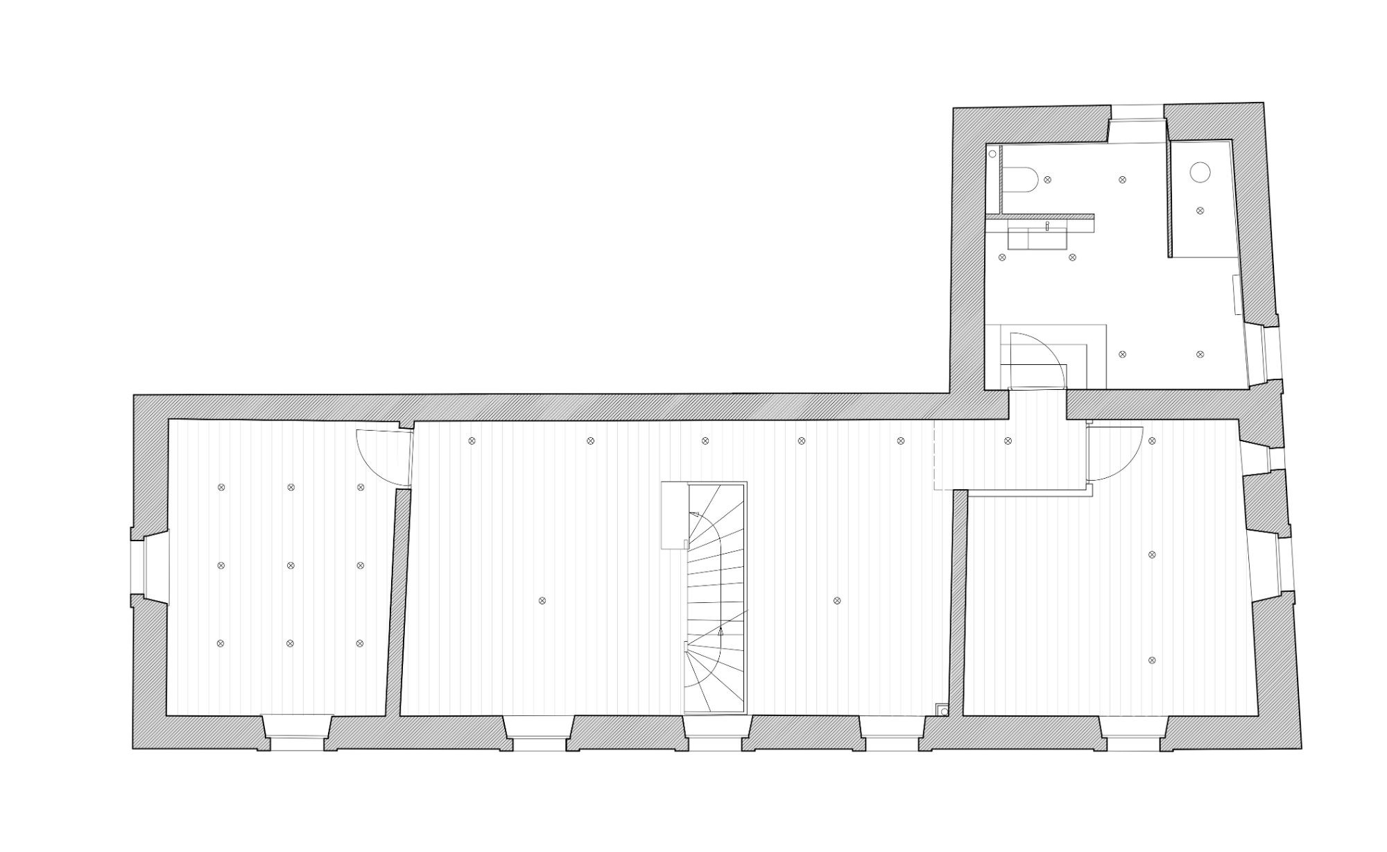
Rénovation complète d’une maison en pierre à Vandoeuvres. Le projet conserve et met en valeur l’escalier historique en chêne massif, encadré par une nouvelle structure métallique contemporaine qui dialogue avec les murs d’origine. L’intervention révèle la beauté brute des matériaux existants — pierre, bois, fer — tout en inscrivant le bâtiment dans un confort contemporain. Les planchers en chêne clair et les finitions sobres prolongent la lecture de l’escalier comme pièce maîtresse de la maison.

Vandoeuvres Vandoeuvres Vandoeuvres Vandoeuvres Vandoeuvres Vandoeuvres Vandoeuvres Vandoeuvres